Megosztás
Érd, Érdliget
ház, családi ház
Alapterület
139 m2
Telekterület
558 m2
Építés éve
2026
Háló
3 db
Fürdő
1 db
Nappali
1 db
148 Millió Ft
| Komfort | összkomfort |
| Fürdő/WC | külön |
| Burkolat | laminált padló, járólap |
| Energiatanúsítvány | A+ |
| Környezeti hatás | napfényes, világos, csendes |
| Épület belső állapota | új |
| Épület külső állapota | épülő projekt |
| Fűtés | egyéb |
| Belső kialakítás | amerikai konyha, előszoba, közlekedő, háztartási helyiség, gardrób |
| Kiegészítő információk | internet, kábel tv |
| Parkolás | garázsban, Közterületen - ingyenes |
| Közmű | villany, víz, csatorna |
| Tetőszerkezet anyaga | betoncserép |
| Épületszerkezet | POROTHERM tégla, hőszigetelt |
| Közlekedés | aszfaltút, tömegközlekedés közelben, vonat közelben, autópálya felhajtó közelben |
| Kilátás | kertre néző |
| Extrák | kertkapcsolatos |
| Telek elhelyezkedés | belterület |
| Szintek száma: | földszintes |
CSAK NÁLUNK!! 3 HÁLÓ + NAGY NAPPALI, REMEK INFRASTRUKTÚRA MÉGIS CSENDES KERTVÁROSI KÖRNYÉK, HŐSZIVATTYÚS FŰTÉS! KÜLÖNÁLLÓ CSALÁDIHÁZ!
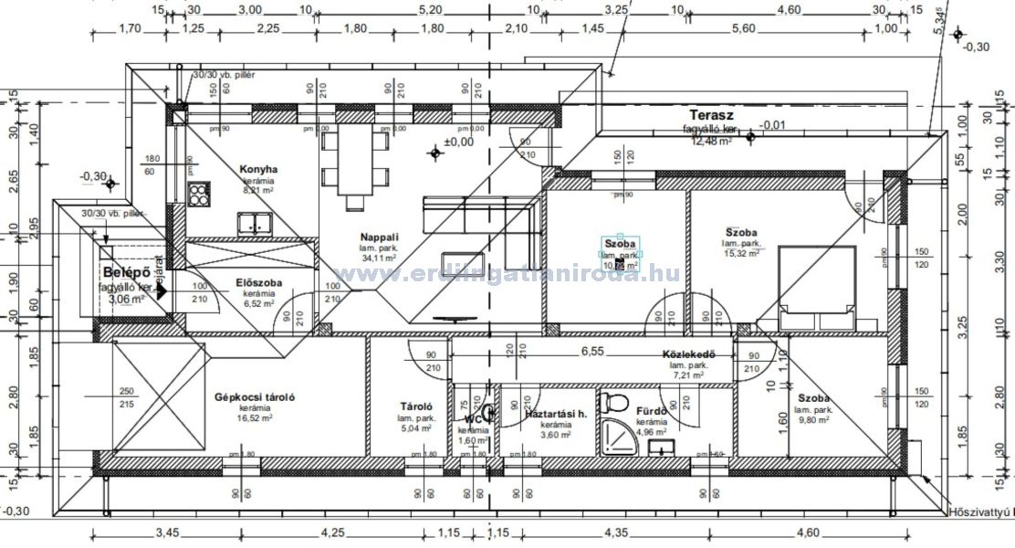
AZ ÉRD-ALSÓ VASÚTI MEGÁLLÓTÓL 10 PERC SÉTA TÁVOLSÁGBAN! ÉRD-LIGET kerületében, 558 m2-es különálló telekre épült, új építésű, 1 szintes 3 SZOBA+NAPPALIS, összkomfortos 124 m2 lakóterületű családi ház eladó.
Az ingatlan 124 m2 hasznos lakóterületű + 12,5 m2-es terasz tartozik hozzá. Tágas amerikai-konyhás nappali (42 m2); 3 hálószoba (15,3; 10,7; 9,8 m2), házkapcsolatú garázs (17 m2); fürdőszoba-WC (5 m2); előszoba (6,5 m2) található benne. A nappaliból közvetlen kapcsolat nyílik a hátsó kert felé néző 12 m2-es teraszra.
A ház Porotherm 30cm vastag tégla felmenő falazattal épül, külső homlokzaton 15cm polisztirolszigeteléssel ellátva, belső válaszfalak 10cm tégla falazattal.
Fűtése és melegvíz ellátása hőszivattyúról padló hőleadással történik. A használati melegvíz előállítása HMV (melegvíz tartállyal) megoldott.
A belső esztétikai befejező munkák igény szerinti kialakítása még lehetséges. Burkolatok, beltéri ajtók, a szaniterek megadott költségkeretben szintén megválaszthatók.
A külső nyílászárók műanyag profil szerkezetű, 5 légkamrás, 3 rétegű üvegezésű ajtók és ablakok. Ezeket elektromos, távirányitóval vezérelt redőnyök beépítésének lehetőségére elő készítik (rejtett redőnytokok beépítésre kerülnek). Kívül műanyag, belül kőpárkányokkal ellátva adják át az ingatlant.
Az automatizált távirányítású kapu és garázsnyitó, a fedetlen kocsibeálló valamint a járda a kapuktól egészen a bejárati ajtóhoz szintén a vételár része. Riasztó előkészítés a teljes házban adott. Igény esetén a szerelvényezés a jövőben minden bontás nélkül elvégezhető.
Az ingatlan elhelyezkedésének köszönhetően remek adottságokkal rendelkezik iskola, óvoda, vasúti megálló (Kelenföld pályaudvaron át Déli pályaudvarig közlekedő), autóbusz megálló (amelynek minden járata Bp. Etele térig közlekedik), a mindennapi bevásárláshoz szükséges boltok 5-10 perces sétával, az M6-os autópálya 6-os és 7-es főutakkal találkozó csomópontja 5 perc autózással elérhető.
Ha bármilyen kérdésed lenne az ingatlannal kapcsolatban, ne habozz felvenni velünk a kapcsolatot. Ügyfeleink bizalommal fordulhatnak hozzánk, hiszen készséggel állunk rendelkezésükre. Az ingatlan bemutatása mellett a mi célunk az, hogy segítsük megtalálni az ideális otthont. Akár készpénzből akár államilag támogatott vagy szabad piaci hitelt szeretnél felvenni a vásárláshoz, tanácsadó kollégánk díjmentes, banksemleges ügyintézéssel áll rendelkezésre. Igény esetén ügyvédi segítséget is ajánlunk a teljes ügymenet jogi lebonyolításához.
AZ ÉRD-ALSÓ VASÚTI MEGÁLLÓTÓL 10 PERC SÉTA TÁVOLSÁGBAN! ÉRD-LIGET kerületében, 558 m2-es különálló telekre épült, új építésű, 1 szintes 3 SZOBA+NAPPALIS, összkomfortos 124 m2 lakóterületű családi ház eladó.
Az ingatlan 124 m2 hasznos lakóterületű + 12,5 m2-es terasz tartozik hozzá. Tágas amerikai-konyhás nappali (42 m2); 3 hálószoba (15,3; 10,7; 9,8 m2), házkapcsolatú garázs (17 m2); fürdőszoba-WC (5 m2); előszoba (6,5 m2) található benne. A nappaliból közvetlen kapcsolat nyílik a hátsó kert felé néző 12 m2-es teraszra.
A ház Porotherm 30cm vastag tégla felmenő falazattal épül, külső homlokzaton 15cm polisztirolszigeteléssel ellátva, belső válaszfalak 10cm tégla falazattal.
Fűtése és melegvíz ellátása hőszivattyúról padló hőleadással történik. A használati melegvíz előállítása HMV (melegvíz tartállyal) megoldott.
A belső esztétikai befejező munkák igény szerinti kialakítása még lehetséges. Burkolatok, beltéri ajtók, a szaniterek megadott költségkeretben szintén megválaszthatók.
A külső nyílászárók műanyag profil szerkezetű, 5 légkamrás, 3 rétegű üvegezésű ajtók és ablakok. Ezeket elektromos, távirányitóval vezérelt redőnyök beépítésének lehetőségére elő készítik (rejtett redőnytokok beépítésre kerülnek). Kívül műanyag, belül kőpárkányokkal ellátva adják át az ingatlant.
Az automatizált távirányítású kapu és garázsnyitó, a fedetlen kocsibeálló valamint a járda a kapuktól egészen a bejárati ajtóhoz szintén a vételár része. Riasztó előkészítés a teljes házban adott. Igény esetén a szerelvényezés a jövőben minden bontás nélkül elvégezhető.
Az ingatlan elhelyezkedésének köszönhetően remek adottságokkal rendelkezik iskola, óvoda, vasúti megálló (Kelenföld pályaudvaron át Déli pályaudvarig közlekedő), autóbusz megálló (amelynek minden járata Bp. Etele térig közlekedik), a mindennapi bevásárláshoz szükséges boltok 5-10 perces sétával, az M6-os autópálya 6-os és 7-es főutakkal találkozó csomópontja 5 perc autózással elérhető.
Ha bármilyen kérdésed lenne az ingatlannal kapcsolatban, ne habozz felvenni velünk a kapcsolatot. Ügyfeleink bizalommal fordulhatnak hozzánk, hiszen készséggel állunk rendelkezésükre. Az ingatlan bemutatása mellett a mi célunk az, hogy segítsük megtalálni az ideális otthont. Akár készpénzből akár államilag támogatott vagy szabad piaci hitelt szeretnél felvenni a vásárláshoz, tanácsadó kollégánk díjmentes, banksemleges ügyintézéssel áll rendelkezésre. Igény esetén ügyvédi segítséget is ajánlunk a teljes ügymenet jogi lebonyolításához.
Kiemelt ingatlanok
Érd
Érden összesen 8 000 m2-es Lf építési övezetben található telekterület (5 egymás mellett található, de külön-külön helyrajziszámon nyilvántartott területből áll), 158 m2-es...
158 m2hálófürdő
Érd, Érdliget
Érdligeten a városközpont közelében, átmenő forgalomtól mentes csendes családi házas környezetben, csodálatosan parkosított 1095 nm-es díszkertben, nettó 170nm lakóterületű családi...
197 m22 háló3 fürdő
Érd, Dombosváros
Érd dombosvárosi területén , főút közeli csendes , család barát aszfaltozott utcában , 1097 m2-es extra méretű parkosított összközműves telken ,belső kétszintes ,135,6m2-es ,3...
135 m23 háló2 fürdő
Érd, Vincellér
Érd Parkváros kitűnő megközelíthetőséggel, közel "0" energiaigényű 3 lakásos sorház 120m2 hasznos lakóterületű 3 szoba+nappalis+GARÁZSOS, belső kétszintes, KÜLÖN UTCAFRONTI...
120 m23 háló1 fürdő
Érd, Fenyves-Parkváros
3 SZOBA+NAPPALIS, KÖZKEDVELT ALAPRAJZ SZERINT MEGÉPÜLT, 46M2 NAPPALI-ÉTKEZŐ-KONYHA TÁGAS TÉRREL, EGYSZINTES, MEDITERRÁN CSALÁDI HÁZ ELADÓ!
Érden, a Fenyves Parkvárosi részen 840m2...
128 m23 háló2 fürdő
Érd, Vincellér
Érd Parkváros kitűnő megközelíthetőséggel, közel "0" energiaigényű 3 lakásos sorház 107m2 hasznos lakóterületű 2 szoba+nappalis+GARÁZSOS, belső kétszintes, KÜLÖN UTCAFRONTI...
107 m22 háló1 fürdő













