Megosztás
Budapest
ház, ikerház
Alapterület
109 m2
Telekterület
1080 m2
Építés éve
2025
Háló
3 db
Fürdő
2 db
Nappali
1 db
149.9 Millió Ft
| Komfort | duplakomfort |
| Fürdő/WC | külön és egyben |
| Burkolat | laminált padló, járólap |
| Környezeti hatás | csendes |
| Épület belső állapota | új |
| Épület külső állapota | épülő projekt |
| Fűtés | egyéb |
| Belső kialakítás | erkély, ebédlő, amerikai konyha, kamra, előszoba, tároló |
| Tájolás | délnyugat |
| Közmű | villany, víz, csatorna |
| Tetőszerkezet anyaga | cserép |
| Épületszerkezet | POROTHERM tégla, hőszigetelt |
| Kilátás | kertre néző |
| Telek elhelyezkedés | belterület |
| Szintek száma: | 2 |
ÚJ ÉPÍTÉSŰ IKERHÁZ ÁREMELÉS ELŐTTI ÁRON, 2025-ÖS LEKÖTÉS ESETÉN 149,9 MFT ,
KIZÁRÓLAGOS UTCAFRONTI BEJÁRAT , SAJÁT SZEPARÁLT KERT, HŐSZIVATTYÚS PADLÓ FŰTÉS.
Budapest XXII. kerületében Budafokon épülő 357m2-es saját, SZEPARÁLT kerttel rendelkező, kétszintes ikerház várható átadása 2026. júliusában!
Megbízható beruházó, számos referencia ingatlan!
Az ikerházak sávos betonalapra épülnek, főfalak 30-as téglából készülnek, amelyekre kívülről 15cm dryvit szigetelés kerül. Belső válaszfalak szintén téglából készülnek. Az ikerházak a tárolók falánál érintkeznek.
A külső nyílászárók műanyag szerkezetűek, fokozott hőszigetelésű üvegezéssel ellátva.
A belső nyílászárók dekorfóliás ajtók.
Tetőfedés cserép.
Az igény szerinti befejezésnek köszönhetően a hideg-meleg burkolatok kiválaszthatók a kivitelezővel folytatott megbeszélés keretében, de az ár a hidegburkolatokat 4500 Ft/nm-ig, normál méretű lapok esetében a meleg burkolatokokat 4500 Ft/nm-ig tartalmazza.
A fütésről 8 kW-os Fischer hőszivattyú gondoskodik padlófűtéssel.
Parkolás: saját udvaron fedetlen-felszíni, kövezett beálló áll rendelkezésre.
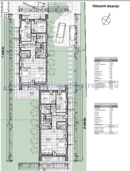
Az , 104,75 nm-es ikerház földszintjén található egy
- 21,25 nm-es nappali,
- 14,96 nm-es konyha-étkező
- 2,04 nm kamra
- 5,04 nm-es háztartási helyiség
- Fürdőszoba 3,23 nm
- Előszoba 3,2 nm
- + terasz 15,12 nm (ennek fele került a teljes négyzetméterbe beszámításra)
Az emeleten három élhető szoba ( 12,8 nm,12,4 nm és 10,07 nm) mellett egy fürdőszoba+WC 6,02 nm valamint a közlekedő 2,8 nm. (A lépcső 3,41 nm-t foglal el).
A 2. sz.109 nm-es ikerház földszintjén található egy
- Nappali 25,75 nm
- Konyha-étkező 12,29 nm
- Fürdőszoba 5,59 nm
- Előtér 3,23 nm
- + terasz 15,12 nm (ennek fele került a teljes négyzetméterbe beszámításra)
Az emeleten három élhető szoba ( 12,6 nm,12,1 nm és 10,12 nm) mellett egy fürdőszoba + WC 5,85 nm valamint a közlekedő 5,45 nm és egy háztartási helyiség 5,04 nm mellett a lépcső 3,5 nm-t foglal el.
Szuper infrastruktúra!!! Buszmegálló, óvoda, iskola, élelmiszerboltok, gyógyszertár, posta pár perc sétatávolságra.
Ha bármilyen kérdésed lenne az ingatlannal kapcsolatban, ne habozz felvenni a kapcsolatot.
Akár készpénzből akár államilag támogatott vagy szabad piaci hitelt szeretnél felvenni a vásárláshoz, tanácsadó kollégánk díjmentes, banksemleges ügyintézéssel áll rendelkezésre. Igény esetén ügyvédi segítséget is ajánlunk a teljes ügymenet jogi lebonyolításához.
KIZÁRÓLAGOS UTCAFRONTI BEJÁRAT , SAJÁT SZEPARÁLT KERT, HŐSZIVATTYÚS PADLÓ FŰTÉS.
Budapest XXII. kerületében Budafokon épülő 357m2-es saját, SZEPARÁLT kerttel rendelkező, kétszintes ikerház várható átadása 2026. júliusában!
Megbízható beruházó, számos referencia ingatlan!
Az ikerházak sávos betonalapra épülnek, főfalak 30-as téglából készülnek, amelyekre kívülről 15cm dryvit szigetelés kerül. Belső válaszfalak szintén téglából készülnek. Az ikerházak a tárolók falánál érintkeznek.
A külső nyílászárók műanyag szerkezetűek, fokozott hőszigetelésű üvegezéssel ellátva.
A belső nyílászárók dekorfóliás ajtók.
Tetőfedés cserép.
Az igény szerinti befejezésnek köszönhetően a hideg-meleg burkolatok kiválaszthatók a kivitelezővel folytatott megbeszélés keretében, de az ár a hidegburkolatokat 4500 Ft/nm-ig, normál méretű lapok esetében a meleg burkolatokokat 4500 Ft/nm-ig tartalmazza.
A fütésről 8 kW-os Fischer hőszivattyú gondoskodik padlófűtéssel.
Parkolás: saját udvaron fedetlen-felszíni, kövezett beálló áll rendelkezésre.
Az , 104,75 nm-es ikerház földszintjén található egy
- 21,25 nm-es nappali,
- 14,96 nm-es konyha-étkező
- 2,04 nm kamra
- 5,04 nm-es háztartási helyiség
- Fürdőszoba 3,23 nm
- Előszoba 3,2 nm
- + terasz 15,12 nm (ennek fele került a teljes négyzetméterbe beszámításra)
Az emeleten három élhető szoba ( 12,8 nm,12,4 nm és 10,07 nm) mellett egy fürdőszoba+WC 6,02 nm valamint a közlekedő 2,8 nm. (A lépcső 3,41 nm-t foglal el).
A 2. sz.109 nm-es ikerház földszintjén található egy
- Nappali 25,75 nm
- Konyha-étkező 12,29 nm
- Fürdőszoba 5,59 nm
- Előtér 3,23 nm
- + terasz 15,12 nm (ennek fele került a teljes négyzetméterbe beszámításra)
Az emeleten három élhető szoba ( 12,6 nm,12,1 nm és 10,12 nm) mellett egy fürdőszoba + WC 5,85 nm valamint a közlekedő 5,45 nm és egy háztartási helyiség 5,04 nm mellett a lépcső 3,5 nm-t foglal el.
Szuper infrastruktúra!!! Buszmegálló, óvoda, iskola, élelmiszerboltok, gyógyszertár, posta pár perc sétatávolságra.
Ha bármilyen kérdésed lenne az ingatlannal kapcsolatban, ne habozz felvenni a kapcsolatot.
Akár készpénzből akár államilag támogatott vagy szabad piaci hitelt szeretnél felvenni a vásárláshoz, tanácsadó kollégánk díjmentes, banksemleges ügyintézéssel áll rendelkezésre. Igény esetén ügyvédi segítséget is ajánlunk a teljes ügymenet jogi lebonyolításához.
Kiemelt ingatlanok
Budapest
35 kW SZALDÓS ELSZÁMOLÁSÚ NAPELEM, 22 kW-os HŐSZIVATTYÚ, KÜLSŐ és BELSŐ FŰTÖTT MEDENCE, NAGY TELEK, TÁGAS BELSŐ TEREK, SZÁMOS EXTRÁVAL és akár TELJES BÚTORZATTAL és beépített...
600 m26 háló3 fürdő
Érd, Vincellér
Érd Parkváros kitűnő megközelíthetőséggel, közel "0" energiaigényű 3 lakásos sorház 98m2 hasznos lakóterületű 2 szoba+nappalis+garázsos, belső kétszintes, külön utcafronti...
98 m22 háló1 fürdő
Érd, Érdliget
VÁLLALKOZÓK, BEFEKTETŐK FIGYELEM!!!!!
Érdliget legszebb részén ÚJ ÉPÍTÉSŰ ENERGIATAKARÉKOS, VÁLASZTHATÓ BELSŐ BEFEJEZÉSSEL lakások eladók egy 11 lakásos társasházban. A...
164 m25 háló2 fürdő
Érd, Dombosváros
Érd dombosvárosi területén , főút közeli csendes , család barát aszfaltozott utcában , 1097 m2-es extra méretű parkosított összközműves telken ,belső kétszintes ,135,6m2-es ,3...
135 m23 háló2 fürdő
Érd, Érdliget
Érdligeten a városközpont közelében, átmenő forgalomtól mentes csendes családi házas környezetben, csodálatosan parkosított 1095 nm-es díszkertben, nettó 170nm lakóterületű családi...
197 m22 háló3 fürdő
Érd, Fenyves-Parkváros
3 SZOBA+NAPPALIS, KÖZKEDVELT ALAPRAJZ SZERINT MEGÉPÜLT, 46M2 NAPPALI-ÉTKEZŐ-KONYHA TÁGAS TÉRREL, EGYSZINTES, MEDITERRÁN CSALÁDI HÁZ ELADÓ!
Érden, a Fenyves Parkvárosi részen 840m2...
128 m23 háló2 fürdő













