Megosztás
Érd, Városközpont
lakás, társasházi új építésű
Alapterület
60 m2
Telekterület
m2
Építés éve
2026
Háló
2 db
Fürdő
1 db
Nappali
1 db
79.9 Millió Ft
| Komfort | összkomfort |
| Fürdő/WC | külön és egyben |
| Burkolat | laminált padló, járólap |
| Energiatanúsítvány | A+ |
| Környezeti hatás | világos, csendes |
| Épület belső állapota | új |
| Épület külső állapota | új építésű |
| Fűtés | padló |
| Belső kialakítás | erkély, amerikai konyha, előszoba, közlekedő, tároló, légkondicionálás |
| Kiegészítő információk | internet, kábel tv |
| Parkolás | teremgarázsban - külön megvásárolható, kültéri parkolóban – külön megvásárolható, Közterületen - ingyenes |
| Telek kialakítás | elektromos kapu |
| Közmű | villany, víz, csatorna, vízórás |
| Tetőszerkezet anyaga | betoncserép |
| Épületszerkezet | POROTHERM tégla, hőszigetelt |
| Közlekedés | aszfaltút, tömegközlekedés közelben, vonat közelben, autópálya felhajtó közelben |
| Kilátás | kertre néző |
| Épületen belüli elhelyezkedés | tetőtérben |
| Szintek száma: | 3 |
10 % FOGLALÓVAL LEKÖTHETŐ ÚJ ÉPÍTÉSŰ, ENERGIATAKARÉKOS LAKÁSOK! ÉRD-VÁROSKÖZPONTJÁBAN!
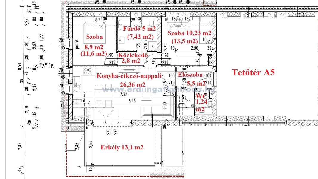
A TÁRSASHÁZI lakás 60 m2 hasznos lakóterületű (minimum 1,90-es belmagassággal számítva) a teljes alapterülete 69 m2 + 13,1 m2 erkély, 2 szoba (10,23 (13,5); 8,9 (11,6) m2) + nappali-konyha-étkező (26,4 m2), fürdőszoba, WC, előszoba, helyiségekből álló második emeleti (részben tetőtéri) lakás.
HŐSZIVATTYÚS HŰTÉS-FŰTÉS! RENDKÍVÜL JÓ TÖMEGKÖZLEKEDÉS (vasúti és buszmegálló), KÍVÁLÓ INFRASTRUKTÚRA! SAJÁT LAKÁSONKÉNTI FŐMÉRŐVEL MINDEN KÖZMŰSZOLGÁLTATÁSHOZ!
A hideg és meleg burkolatok (7.000 Ft/m2), belső falak színei, szaniterek, csaptelepek választhatók így a leendő új tulajdonos ízlésének megfelelően történek a befejezési munkák. A ház 30-as hőszigetelő téglából épül, amit 15 cm-es szigeteléssel burkolnak. A külső nyílászárók 6 légkamrás, 3 rétegű üvegezéssel ellátott, bukó-nyíló ajtók és ablakok, rejtett redőnytokokkal felszerelve elektromos mozgatásra is előkészítve (a roló és szúnyogháló nem tartozék).
A lakás fűtés és hűtés rendszerét levegő és víz teres, 6 kW-os, ARISTON márkájú elektromos hőszivattyú működteti majd (lakásonként saját készülék) padlófűtéssel, a nappaliban fan coil (klíma) készülékkel „H tarifa” áram szolgáltatással. A melegvízellátást falra szerelt ARISTON hőtároló készülék biztosítja.
Az ingatlan elhelyezkedésének köszönhetően remek adottságokkal rendelkezik. Iskola, óvoda, autóbusz megálló (amelynek járatai Bp. Etele térig közlekedik), Érd- Felső és Érd- Alsó vasúti megállók (végállomás Kelenföld és Déli p.u.), a mindennapi bevásárláshoz szükséges boltok, háziorvosi rendelő és gyógyszertár 5-10 perces könnyű sétával, az M6-os autópálya 6-os és 7-es főutakkal találkozó csomópontja 5 perc autózással elérhető.
A lakáshoz tartozó saját, teremgarázs parkoló vételára + 3 000 000 Ft, vagy felszíni parkoló 2 000 000 Ft, tároló + 2 000 0000 Ft (kivéve ahol a lakáson belül található) a lakás vételárán felül vásárolható.
Ha bármilyen kérdésed lenne az ingatlannal kapcsolatban, ne habozz felvenni velünk a kapcsolatot. Ügyfeleink bizalommal fordulhatnak hozzánk, hiszen készséggel állunk rendelkezésükre. Az ingatlan bemutatása mellett a mi célunk az, hogy segítsük megtalálni az ideális otthont. Akár készpénzből akár államilag támogatott vagy szabad piaci hitelt szeretnél felvenni a vásárláshoz, tanácsadó kollégánk díjmentes, banksemleges ügyintézéssel áll rendelkezésre. Igény esetén ügyvédi segítséget is ajánlunk a teljes ügymenet jogi lebonyolításához.
Jelenleg elérhető lakáskínálat:
Földszint:
A1-es lakás. 3 szoba + nappali, 81,4 m2 (+ 16 m2 terasz), kertkapcsolat ~50 m2. 99,9 Millió Ft (+ kert 5 Millió + garázs 3 Millió vagy nyílt parkoló 2 Millió)
B2-es lakás. 3 szoba + nappali, 81,4 m2 (+ 16 m2 terasz), kertkapcsolat ~250 m2. 99,9 Millió Ft (+ kert 5 Millió + garázs 3 Millió vagy nyílt parkoló 2 Millió)
Emelet:
A2-es lakás. 2 szoba + nappali, 62,51 m2 (+ 13,1 m2 erkély). 81,9 Millió Ft (+ garázs 3 Millió vagy nyílt parkoló 2 Millió)
A3-as lakás. 2 szoba + nappali, 45,61 m2 (+ 5,88 m2 erkély + 5 m2 tároló). 64,9 Millió Ft (+ garázs 3 Millió vagy nyílt parkoló 2 Millió + Tároló 2 Millió)
A4-es lakás. 2 szoba + nappali, 57,84 m2 (+13,1 m2 erkély). 75,9 Millió Ft (+ garázs 3 Millió vagy nyílt parkoló 2 Millió)
B2-es lakás. 2 szoba + nappali, 62,51 m2 (+ 13,1 m2 erkély). 81,9 Millió Ft (+ garázs 3 Millió vagy nyílt parkoló 2 Millió)
B3-as lakás. 2 szoba + nappali, 45,61 m2 (+ 5,88 m2 erkély + 5 m2 tároló). 64,9 Millió Ft (+ garázs 3 Millió vagy nyílt parkoló 2 Millió + Tároló 2 Millió)
B4-es lakás. 2 szoba + nappali, 57,84 m2 (+13,1 m2 erkély). 75,9 Millió Ft (+ garázs 3 Millió vagy nyílt parkoló 2 Millió)
Tetőtér:
A5-ös lakás. 2 szoba + nappali, nettó: 59,95 m2 bruttó: 68,5 m2 (+ 13,1 m2 erkély). 79,9 Millió Ft (+ garázs 3 Millió vagy nyílt parkoló 2 Millió + Tároló 2 Millió)
A6-os lakás. 2 szoba + nappali, nettó: 58,23 m2 bruttó: 69,6 m2 (+ 13,1 m2 erkély). 79,9 Millió Ft (+ garázs 3 Millió vagy nyílt parkoló 2 Millió + Tároló 2 Millió)
B5-ös lakás. 2 szoba + nappali, nettó: 59,95 m2 bruttó: 68,5 m2 (+ 13,1 m2 erkély). 79,9 Millió Ft (+ garázs 3 Millió vagy nyílt parkoló 2 Millió + Tároló 2 Millió)
B6-os lakás. 2 szoba + nappali, nettó: 58,23 m2 bruttó: 69,6 m2 (+ 13,1 m2 erkély). 79,9 Millió Ft (+ garázs 3 Millió vagy nyílt parkoló 2 Millió + Tároló 2 Millió)
A lakáshoz tartozó saját, teremgarázs parkoló vételára + 3 000 000 Ft, vagy felszíni parkoló 2 000 000 Ft, tároló + 2 000 0000 Ft (kivéve ahol a lakáson belül található) a lakás vételárán felül vásárolható.
A TÁRSASHÁZI lakás 60 m2 hasznos lakóterületű (minimum 1,90-es belmagassággal számítva) a teljes alapterülete 69 m2 + 13,1 m2 erkély, 2 szoba (10,23 (13,5); 8,9 (11,6) m2) + nappali-konyha-étkező (26,4 m2), fürdőszoba, WC, előszoba, helyiségekből álló második emeleti (részben tetőtéri) lakás.
HŐSZIVATTYÚS HŰTÉS-FŰTÉS! RENDKÍVÜL JÓ TÖMEGKÖZLEKEDÉS (vasúti és buszmegálló), KÍVÁLÓ INFRASTRUKTÚRA! SAJÁT LAKÁSONKÉNTI FŐMÉRŐVEL MINDEN KÖZMŰSZOLGÁLTATÁSHOZ!
A hideg és meleg burkolatok (7.000 Ft/m2), belső falak színei, szaniterek, csaptelepek választhatók így a leendő új tulajdonos ízlésének megfelelően történek a befejezési munkák. A ház 30-as hőszigetelő téglából épül, amit 15 cm-es szigeteléssel burkolnak. A külső nyílászárók 6 légkamrás, 3 rétegű üvegezéssel ellátott, bukó-nyíló ajtók és ablakok, rejtett redőnytokokkal felszerelve elektromos mozgatásra is előkészítve (a roló és szúnyogháló nem tartozék).
A lakás fűtés és hűtés rendszerét levegő és víz teres, 6 kW-os, ARISTON márkájú elektromos hőszivattyú működteti majd (lakásonként saját készülék) padlófűtéssel, a nappaliban fan coil (klíma) készülékkel „H tarifa” áram szolgáltatással. A melegvízellátást falra szerelt ARISTON hőtároló készülék biztosítja.
Az ingatlan elhelyezkedésének köszönhetően remek adottságokkal rendelkezik. Iskola, óvoda, autóbusz megálló (amelynek járatai Bp. Etele térig közlekedik), Érd- Felső és Érd- Alsó vasúti megállók (végállomás Kelenföld és Déli p.u.), a mindennapi bevásárláshoz szükséges boltok, háziorvosi rendelő és gyógyszertár 5-10 perces könnyű sétával, az M6-os autópálya 6-os és 7-es főutakkal találkozó csomópontja 5 perc autózással elérhető.
A lakáshoz tartozó saját, teremgarázs parkoló vételára + 3 000 000 Ft, vagy felszíni parkoló 2 000 000 Ft, tároló + 2 000 0000 Ft (kivéve ahol a lakáson belül található) a lakás vételárán felül vásárolható.
Ha bármilyen kérdésed lenne az ingatlannal kapcsolatban, ne habozz felvenni velünk a kapcsolatot. Ügyfeleink bizalommal fordulhatnak hozzánk, hiszen készséggel állunk rendelkezésükre. Az ingatlan bemutatása mellett a mi célunk az, hogy segítsük megtalálni az ideális otthont. Akár készpénzből akár államilag támogatott vagy szabad piaci hitelt szeretnél felvenni a vásárláshoz, tanácsadó kollégánk díjmentes, banksemleges ügyintézéssel áll rendelkezésre. Igény esetén ügyvédi segítséget is ajánlunk a teljes ügymenet jogi lebonyolításához.
Jelenleg elérhető lakáskínálat:
Földszint:
A1-es lakás. 3 szoba + nappali, 81,4 m2 (+ 16 m2 terasz), kertkapcsolat ~50 m2. 99,9 Millió Ft (+ kert 5 Millió + garázs 3 Millió vagy nyílt parkoló 2 Millió)
B2-es lakás. 3 szoba + nappali, 81,4 m2 (+ 16 m2 terasz), kertkapcsolat ~250 m2. 99,9 Millió Ft (+ kert 5 Millió + garázs 3 Millió vagy nyílt parkoló 2 Millió)
Emelet:
A2-es lakás. 2 szoba + nappali, 62,51 m2 (+ 13,1 m2 erkély). 81,9 Millió Ft (+ garázs 3 Millió vagy nyílt parkoló 2 Millió)
A3-as lakás. 2 szoba + nappali, 45,61 m2 (+ 5,88 m2 erkély + 5 m2 tároló). 64,9 Millió Ft (+ garázs 3 Millió vagy nyílt parkoló 2 Millió + Tároló 2 Millió)
A4-es lakás. 2 szoba + nappali, 57,84 m2 (+13,1 m2 erkély). 75,9 Millió Ft (+ garázs 3 Millió vagy nyílt parkoló 2 Millió)
B2-es lakás. 2 szoba + nappali, 62,51 m2 (+ 13,1 m2 erkély). 81,9 Millió Ft (+ garázs 3 Millió vagy nyílt parkoló 2 Millió)
B3-as lakás. 2 szoba + nappali, 45,61 m2 (+ 5,88 m2 erkély + 5 m2 tároló). 64,9 Millió Ft (+ garázs 3 Millió vagy nyílt parkoló 2 Millió + Tároló 2 Millió)
B4-es lakás. 2 szoba + nappali, 57,84 m2 (+13,1 m2 erkély). 75,9 Millió Ft (+ garázs 3 Millió vagy nyílt parkoló 2 Millió)
Tetőtér:
A5-ös lakás. 2 szoba + nappali, nettó: 59,95 m2 bruttó: 68,5 m2 (+ 13,1 m2 erkély). 79,9 Millió Ft (+ garázs 3 Millió vagy nyílt parkoló 2 Millió + Tároló 2 Millió)
A6-os lakás. 2 szoba + nappali, nettó: 58,23 m2 bruttó: 69,6 m2 (+ 13,1 m2 erkély). 79,9 Millió Ft (+ garázs 3 Millió vagy nyílt parkoló 2 Millió + Tároló 2 Millió)
B5-ös lakás. 2 szoba + nappali, nettó: 59,95 m2 bruttó: 68,5 m2 (+ 13,1 m2 erkély). 79,9 Millió Ft (+ garázs 3 Millió vagy nyílt parkoló 2 Millió + Tároló 2 Millió)
B6-os lakás. 2 szoba + nappali, nettó: 58,23 m2 bruttó: 69,6 m2 (+ 13,1 m2 erkély). 79,9 Millió Ft (+ garázs 3 Millió vagy nyílt parkoló 2 Millió + Tároló 2 Millió)
A lakáshoz tartozó saját, teremgarázs parkoló vételára + 3 000 000 Ft, vagy felszíni parkoló 2 000 000 Ft, tároló + 2 000 0000 Ft (kivéve ahol a lakáson belül található) a lakás vételárán felül vásárolható.
Kiemelt ingatlanok
Érd, Újtelep
Érd, Tárnok felé eső déli részén, TELJESEN ALÁPNCÉZETT ÖSSZESEN 360 m2-es HÁZ, AZ ÚJRA ELŐÁLLÍTÁSI KÖLTSÉGE ALATT!
A ház 2003-ban hőszigetelő téglából épült 923 m2-es...
308 m26 háló2 fürdő
Érd, Vincellér
Érd Parkváros kitűnő megközelíthetőséggel, közel "0" energiaigényű 3 lakásos sorház 120m2 hasznos lakóterületű 3 szoba+nappalis+GARÁZSOS, belső kétszintes, KÜLÖN UTCAFRONTI...
120 m23 háló1 fürdő
Érd, Fenyves-Parkváros
3 SZOBA+NAPPALIS, KÖZKEDVELT ALAPRAJZ SZERINT MEGÉPÜLT, 46M2 NAPPALI-ÉTKEZŐ-KONYHA TÁGAS TÉRREL, EGYSZINTES, MEDITERRÁN CSALÁDI HÁZ ELADÓ!
Érden, a Fenyves Parkvárosi részen 840m2...
128 m23 háló2 fürdő
Érd, Érdliget
Érdligeten a városközpont közelében, átmenő forgalomtól mentes csendes családi házas környezetben, csodálatosan parkosított 1095 nm-es díszkertben, nettó 170nm lakóterületű családi...
197 m22 háló3 fürdő
Érd, Dombosváros
Érd dombosvárosi területén , főút közeli csendes , család barát aszfaltozott utcában , 1097 m2-es extra méretű parkosított összközműves telken ,belső kétszintes ,135,6m2-es ,3...
135 m23 háló2 fürdő
Budapest
35 kW SZALDÓS ELSZÁMOLÁSÚ NAPELEM, 22 kW-os HŐSZIVATTYÚ, KÜLSŐ és BELSŐ FŰTÖTT MEDENCE, NAGY TELEK, TÁGAS BELSŐ TEREK, SZÁMOS EXTRÁVAL és akár TELJES BÚTORZATTAL és beépített...
600 m26 háló3 fürdő













