Megosztás
Érd
lakás, társasházi tégla, társasházi új építésű
Alapterület
75 m2
Telekterület
m2
Építés éve
2026
Háló
2 db
Fürdő
1 db
Nappali
1 db
89.9 Millió Ft
| Komfort | összkomfort |
| Fürdő/WC | külön és egyben |
| Burkolat | laminált padló, járólap |
| Energiatanúsítvány | A+ |
| Épület belső állapota | új |
| Épület külső állapota | épülő projekt |
| Fűtés | egyéb |
| Belső kialakítás | amerikai konyha, előszoba, közlekedő |
| Kiegészítő információk | bútorozatlan |
| Parkolás | kültéri parkolóban |
| Épületszerkezet | hőszigetelt |
| Kilátás | kertre néző |
Érd Postástelep és Érdliget határán, városközpont közelében, kis lakásszámú , összesen 6 egységből álló tégla építésű társasházban, kiváló alaprajzi elrendezésű , nettó 60,16m2-75,16m2 lakóterületű , 2 hálószoba+nappalis új építésű lakások , saját tárolóval, zárt udvarban 1 autóbeállóval 74,9mfT-89,9MFt közötti áron leköthetőek.
Az építkezés elkezdődött, várható befejezés 2026 év vége.
Megbízható, tőkeerős beruházó, tizenéves múlttal, számos referencia munkával.
Minden lakás saját helyrajzi számmal, és külön közműmérővel fog rendelkezni.
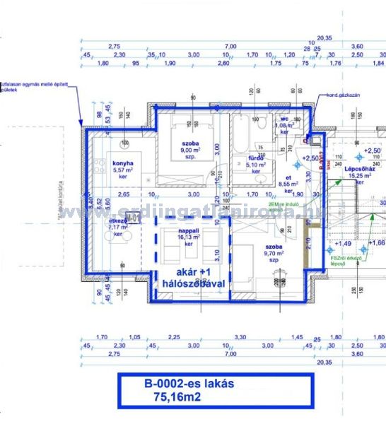
A HIRDETÉSEN SZEREPLŐ ADATOK, a B-0002 LAKÁS PARAMÉTEREIT TARTALMAZZA.
Első em. B-0002 lakás 75,16m2 lakóterület +tároló + parkoló
Helyiségei előtér (8,55m2), wc (1,08m2), fürdőszoba (5,10m2), 2 szoba (9,70m2, 9m2), amerikai konyhás nappali (28,87m2)
Ára : 89,9Mft
TOVÁBBI LEKÖTHETŐ LAKÁSOK :
Első em. B-0001 lakás 60,19m2 lakóterület + tároló + parkoló
Helyiségei előtér (3,90m2), wc (1,08m2), fürdőszoba (5,10m2),étkezős konyha (8,35m2)
nappali (16,05m2), 1 hálószoba (11,12m2)
Ára: 79,9Mft
Második em.B-0003 lakás 60.08m2 lakóterület + tároló + parkoló
Helyiségei: előtér (3,90m2), wc (1,08m2), fürdőszoba (5.,10m2), étkezős konyha (8,35m2) , nappali (16,13m2), 1 hálószoba (11,12m2)
Ára:74,9MFt
Második em.B-0004 lakás 68.67m2 lakóterület + tároló + parkoló parkoló
Helyiségei : előtér közlekedő (8,55m2), fürdőszoba (5,10m2), 2 hálószoba (9m2, 9,7m2),nappali amerikai (28,87m2)
Ára :89,9MFt
Alap műszaki adatok : Beton alap ,30-as tégla felmenő falazat + 15cm külső hőszigetelés , monolit beton födémek ,cserép tetőfedés . A külső nyílászárók műanyag szerkezetű, 3 rétegű üvegezéssel, bukó-nyíló kivitelben, kívül színezett , beépített redőnytokkal (redőny és szúnyogháló nélkül). Fűtést hőszivattyús rendszer biztosítja ,minden helyiségben padlófűtéses hőleadással . A meleg víz ellátás villany bojlerrel megoldott .
A lakások vevői igény szerinti befejezéssel, válaszható burkolatokkal és szaniterekkel, kulcsrakészen kerülnek átadásra . Beltéri ajtók 80.000Ft/db áron, hideg burkolatok 8.000Ft/m2, a meleg burkolatokat 7.000Ft/m2 árig tartalmazza , melytől egyedi megállapodás szerint el lehet térni.
Megközelíthetőség és infrastruktúra kiváló! Tömegközlekedés ,iskola, 2 óvoda, bevásárlási lehetőség pár perc séta távolságra található.
Ügyvédi közreműködéssel, ,személyre szabott díjmentes hitelügyintézéssel is segítjük leendő ügyfeleinket az ingatlan vásárlásnál.
Az építkezés elkezdődött, várható befejezés 2026 év vége.
Megbízható, tőkeerős beruházó, tizenéves múlttal, számos referencia munkával.
Minden lakás saját helyrajzi számmal, és külön közműmérővel fog rendelkezni.
A HIRDETÉSEN SZEREPLŐ ADATOK, a B-0002 LAKÁS PARAMÉTEREIT TARTALMAZZA.
Első em. B-0002 lakás 75,16m2 lakóterület +tároló + parkoló
Helyiségei előtér (8,55m2), wc (1,08m2), fürdőszoba (5,10m2), 2 szoba (9,70m2, 9m2), amerikai konyhás nappali (28,87m2)
Ára : 89,9Mft
TOVÁBBI LEKÖTHETŐ LAKÁSOK :
Első em. B-0001 lakás 60,19m2 lakóterület + tároló + parkoló
Helyiségei előtér (3,90m2), wc (1,08m2), fürdőszoba (5,10m2),étkezős konyha (8,35m2)
nappali (16,05m2), 1 hálószoba (11,12m2)
Ára: 79,9Mft
Második em.B-0003 lakás 60.08m2 lakóterület + tároló + parkoló
Helyiségei: előtér (3,90m2), wc (1,08m2), fürdőszoba (5.,10m2), étkezős konyha (8,35m2) , nappali (16,13m2), 1 hálószoba (11,12m2)
Ára:74,9MFt
Második em.B-0004 lakás 68.67m2 lakóterület + tároló + parkoló parkoló
Helyiségei : előtér közlekedő (8,55m2), fürdőszoba (5,10m2), 2 hálószoba (9m2, 9,7m2),nappali amerikai (28,87m2)
Ára :89,9MFt
Alap műszaki adatok : Beton alap ,30-as tégla felmenő falazat + 15cm külső hőszigetelés , monolit beton födémek ,cserép tetőfedés . A külső nyílászárók műanyag szerkezetű, 3 rétegű üvegezéssel, bukó-nyíló kivitelben, kívül színezett , beépített redőnytokkal (redőny és szúnyogháló nélkül). Fűtést hőszivattyús rendszer biztosítja ,minden helyiségben padlófűtéses hőleadással . A meleg víz ellátás villany bojlerrel megoldott .
A lakások vevői igény szerinti befejezéssel, válaszható burkolatokkal és szaniterekkel, kulcsrakészen kerülnek átadásra . Beltéri ajtók 80.000Ft/db áron, hideg burkolatok 8.000Ft/m2, a meleg burkolatokat 7.000Ft/m2 árig tartalmazza , melytől egyedi megállapodás szerint el lehet térni.
Megközelíthetőség és infrastruktúra kiváló! Tömegközlekedés ,iskola, 2 óvoda, bevásárlási lehetőség pár perc séta távolságra található.
Ügyvédi közreműködéssel, ,személyre szabott díjmentes hitelügyintézéssel is segítjük leendő ügyfeleinket az ingatlan vásárlásnál.
Kiemelt ingatlanok
Érd, Dombosváros
Érd dombosvárosi területén , főút közeli csendes , család barát aszfaltozott utcában , 1097 m2-es extra méretű parkosított összközműves telken ,belső kétszintes ,135,6m2-es ,3...
135 m23 háló2 fürdő
Érd
Érden összesen 8 000 m2-es Lf építési övezetben található telekterület (5 egymás mellett található, de külön-külön helyrajziszámon nyilvántartott területből áll), 158 m2-es...
158 m2hálófürdő
Érd, Fenyves-Parkváros
3 SZOBA+NAPPALIS, KÖZKEDVELT ALAPRAJZ SZERINT MEGÉPÜLT, 46M2 NAPPALI-ÉTKEZŐ-KONYHA TÁGAS TÉRREL, EGYSZINTES, MEDITERRÁN CSALÁDI HÁZ ELADÓ!
Érden, a Fenyves Parkvárosi részen 840m2...
128 m23 háló2 fürdő
Érd, Vincellér
Érd Parkváros kitűnő megközelíthetőséggel, közel "0" energiaigényű 3 lakásos sorház 120m2 hasznos lakóterületű 3 szoba+nappalis+GARÁZSOS, belső kétszintes, KÜLÖN UTCAFRONTI...
120 m23 háló1 fürdő
Budapest
35 kW SZALDÓS ELSZÁMOLÁSÚ NAPELEM, 22 kW-os HŐSZIVATTYÚ, KÜLSŐ és BELSŐ FŰTÖTT MEDENCE, NAGY TELEK, TÁGAS BELSŐ TEREK, SZÁMOS EXTRÁVAL és akár TELJES BÚTORZATTAL és beépített...
600 m26 háló3 fürdő
Érd, Érdliget
Érdligeten a városközpont közelében, átmenő forgalomtól mentes csendes családi házas környezetben, csodálatosan parkosított 1095 nm-es díszkertben, nettó 170nm lakóterületű családi...
197 m22 háló3 fürdő












