Megosztás
Érd, Parkváros - faneves utcák
ház, családi ház, ikerház
Alapterület
89 m2
Telekterület
488 m2
Építés éve
Háló
2 db
Fürdő
1 db
Nappali
1 db
83 Millió Ft
| Komfort | összkomfort |
| Fürdő/WC | külön és egyben |
| Burkolat | laminált padló, járólap |
| Környezeti hatás | napfényes, világos |
| Épület belső állapota | jó állapotú |
| Épület külső állapota | jó állapotú |
| Fűtés | gáz (cirkó), radiátor |
| Belső kialakítás | erkély, konyha, kamra, előszoba, közlekedő, tároló, légkondicionálás |
| Kiegészítő információk | internet, kábel tv, azonnal költözhető |
| Tájolás | délkelet |
| Parkolás | kültéri parkolóban, Közterületen - ingyenes |
| Közmű | villany, gáz, víz, csatorna, ipari áram |
| Épületszerkezet | tégla |
| Közlekedés | aszfaltút, tömegközlekedés közelben, autópálya felhajtó közelben |
| Kilátás | panorámás, kertre néző |
| Extrák | melléképület, pince, kertkapcsolatos |
| Telek elhelyezkedés | belterület |
| Szintek száma: | 2 |
Érd-Parkvárosban remek infrastruktúra mellett, 6 kW NAPELEMMEL, 2 SZOBA+NAPPALIS, összesen 106 m2 –es (ebből hasznos lakóterület 89 m2) családiház, autóbeállóval, 488 m2-es telekkel, pincével (kb. 17 m2) eladó.
Érd-Parkváros, M7-es autópályától déli irányban található részén, a Bajcsy-Zs. E. és a Cseresznyefa főutak által közre zárt területen belül, remek infrastruktúra mellett.
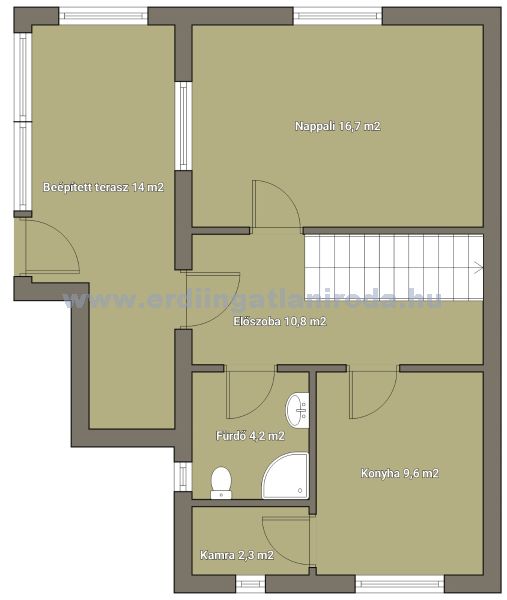
A ház 2 szintes, 89 m2 hasznos lakóterületű + beépített terasz (14 m2) + erkély (6 m2) + pince (17 m2), 2 szoba (18 és 18 m2) + nappali (17 m2), konyha-étkező (10 m2), fürdőszoba és WC, előszoba, kamra helyiségekből áll. A lakás víz, csatorna, villany, gáz közművekkel rendelkezik.
A külső nyílászárók hőszigetelt üvegezésű műanyag ajtók és ablakok. A radiátoros központi fűtésrendszer gázkészülékről működik. A földszinten és az emeleten egy-egy klímakészülék található. A 6 kW-os Huawei inverterrel szerelt napelem rendszer a ház fenntartásának rezsi költségeit nagyban képes csökkenteni.
Az ingatlan elhelyezkedésének köszönhetően remek infrastruktúrával rendelkezik. Parkváros központi része, Inter Spar bevásárló központ közelében található. Autóbusz megálló (amelynek járatai Bp. Etele tér és Érd Stop-Shop végállomások között közlekedik) VALÓBAN 5-10 perces sétával elérhető. Bevásárlási lehetőség, iskola, óvoda, 1-2 Km körön belül fellelhetők. Autóval az M7-es és M0-ás autópályák 5-6 perc alatt megközelíthetők.
Ha bármilyen kérdésed lenne az ingatlannal kapcsolatban, ne habozz felvenni velünk a kapcsolatot. Ügyfeleink bizalommal fordulhatnak hozzánk, hiszen készséggel állunk rendelkezésükre. Az ingatlan bemutatása mellett a mi célunk az, hogy segítsük megtalálni az ideális otthont. Akár készpénzből akár államilag támogatott vagy szabad piaci hitelt szeretnél felvenni a vásárláshoz, tanácsadó kollégánk díjmentes, bankfüggetlen ügyintézéssel áll rendelkezésre. Igény esetén ügyvédi segítséget is ajánlunk a teljes ügymenet jogi lebonyolításához.
Érd-Parkváros, M7-es autópályától déli irányban található részén, a Bajcsy-Zs. E. és a Cseresznyefa főutak által közre zárt területen belül, remek infrastruktúra mellett.
A ház 2 szintes, 89 m2 hasznos lakóterületű + beépített terasz (14 m2) + erkély (6 m2) + pince (17 m2), 2 szoba (18 és 18 m2) + nappali (17 m2), konyha-étkező (10 m2), fürdőszoba és WC, előszoba, kamra helyiségekből áll. A lakás víz, csatorna, villany, gáz közművekkel rendelkezik.
A külső nyílászárók hőszigetelt üvegezésű műanyag ajtók és ablakok. A radiátoros központi fűtésrendszer gázkészülékről működik. A földszinten és az emeleten egy-egy klímakészülék található. A 6 kW-os Huawei inverterrel szerelt napelem rendszer a ház fenntartásának rezsi költségeit nagyban képes csökkenteni.
Az ingatlan elhelyezkedésének köszönhetően remek infrastruktúrával rendelkezik. Parkváros központi része, Inter Spar bevásárló központ közelében található. Autóbusz megálló (amelynek járatai Bp. Etele tér és Érd Stop-Shop végállomások között közlekedik) VALÓBAN 5-10 perces sétával elérhető. Bevásárlási lehetőség, iskola, óvoda, 1-2 Km körön belül fellelhetők. Autóval az M7-es és M0-ás autópályák 5-6 perc alatt megközelíthetők.
Ha bármilyen kérdésed lenne az ingatlannal kapcsolatban, ne habozz felvenni velünk a kapcsolatot. Ügyfeleink bizalommal fordulhatnak hozzánk, hiszen készséggel állunk rendelkezésükre. Az ingatlan bemutatása mellett a mi célunk az, hogy segítsük megtalálni az ideális otthont. Akár készpénzből akár államilag támogatott vagy szabad piaci hitelt szeretnél felvenni a vásárláshoz, tanácsadó kollégánk díjmentes, bankfüggetlen ügyintézéssel áll rendelkezésre. Igény esetén ügyvédi segítséget is ajánlunk a teljes ügymenet jogi lebonyolításához.
Kiemelt ingatlanok
Érd, Vincellér
Érd Parkváros kitűnő megközelíthetőséggel, közel "0" energiaigényű 3 lakásos sorház 116m2 hasznos lakóterületű 3 szoba+nappalis+garázsos, belső kétszintes, külön utcafronti...
116 m23 háló1 fürdő
Érd, Fenyves-Parkváros
3 SZOBA+NAPPALIS, KÖZKEDVELT ALAPRAJZ SZERINT MEGÉPÜLT, 46M2 NAPPALI-ÉTKEZŐ-KONYHA TÁGAS TÉRREL, EGYSZINTES, MEDITERRÁN CSALÁDI HÁZ ELADÓ!
Érden, a Fenyves Parkvárosi részen 840m2...
128 m23 háló2 fürdő
Érd, Érdliget
VÁLLALKOZÓK, BEFEKTETŐK FIGYELEM!!!!!
Érdliget legszebb részén ÚJ ÉPÍTÉSŰ ENERGIATAKARÉKOS, VÁLASZTHATÓ BELSŐ BEFEJEZÉSSEL lakások eladók egy 11 lakásos társasházban. A...
164 m25 háló2 fürdő
Budapest
35 kW SZALDÓS ELSZÁMOLÁSÚ NAPELEM, 22 kW-os HŐSZIVATTYÚ, KÜLSŐ és BELSŐ FŰTÖTT MEDENCE, NAGY TELEK, TÁGAS BELSŐ TEREK, SZÁMOS EXTRÁVAL és akár TELJES BÚTORZATTAL és beépített...
600 m26 háló3 fürdő
Érd, Érdliget
Érdligeten a városközpont közelében, átmenő forgalomtól mentes csendes családi házas környezetben, csodálatosan parkosított 1095 nm-es díszkertben, nettó 170nm lakóterületű családi...
197 m22 háló3 fürdő
Érd, Vincellér
Érd Parkváros kitűnő megközelíthetőséggel, közel "0" energiaigényű 3 lakásos sorház 92m2 hasznos lakóterületű 3 szoba+nappalis, belső kétszintes, külön utcafronti bejáratú,...
92 m23 háló2 fürdő













