Megosztás
Perkáta
ház, családi ház
Alapterület
80 m2
Telekterület
1000 m2
Építés éve
2026
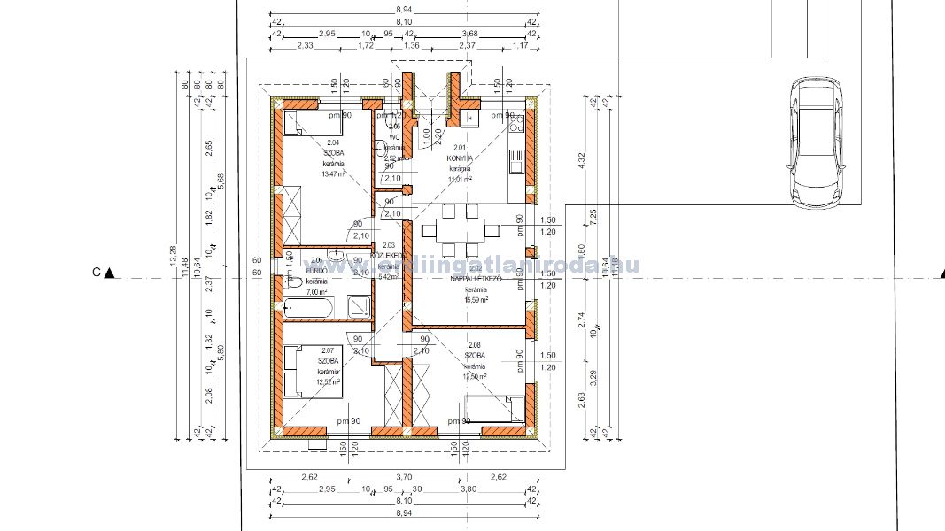
Háló
3 db
Fürdő
1 db
Nappali
1 db
59.9 Millió Ft
| Komfort | összkomfort |
| Fürdő/WC | külön és egyben |
| Burkolat | laminált padló, járólap |
| Energiatanúsítvány | A+ |
| Környezeti hatás | napfényes, világos, csendes |
| Épület belső állapota | új |
| Épület külső állapota | épülő projekt, új építésű |
| Fűtés | padló |
| Belső kialakítás | amerikai konyha, közlekedő |
| Kiegészítő információk | internet, kábel tv |
| Parkolás | kültéri parkolóban |
| Közmű | villany, víz, csatorna |
| Tetőszerkezet anyaga | betoncserép |
| Épületszerkezet | POROTHERM tégla, hőszigetelt |
| Közlekedés | aszfaltút, tömegközlekedés közelben, autópálya felhajtó közelben |
| Kilátás | kertre néző |
| Extrák | kertkapcsolatos |
| Telek elhelyezkedés | belterület |
| Szintek száma: | földszintes |
Perkátán, aszfaltozott utcában, sík ~ 1000 m2-es telekkel rendelkező, 80 m2 hasznos lakóterületű, 3 szoba + nappalis családi ház! A szerződéskötéstől számított 6 hónapon belül költözhető.
A belső nyílászárók, burkolatok, szaniterek választhatók így a belső befejező munkák az új tulajdonos ízlésének megfelelően készülnek majd el.
A külső nyílászárók 3 rétegű üvegezésű ablakok lesznek, a külső falak 30 cm-es hőszigetelő téglából épülnek amit kívülről 12 cm-es szigeteléssel burkolnak be.
A ház fűtése hőszivattyúkészülékről működik majd padlófűtés hőleadással.
Az ingatlan csendes, rendezett környezetben, a község belterületén található, könnyen (végig aszfaltozott úton) megközelíthető a 6-os főút és M6-os autópálya irányából egyaránt 10 perc alatt elérhető.
Perkáta nagyközség Dunaújvárostól 12 km-re, Székesfehérvártól 36 km-re helyezkedik el.
Az ingatlan közvetlen környezet rendezett. Jellemzően életvitel szerűen lakott családi házak határozzák meg az utca képet. Autóbusz megálló a közelben 5 perc séta távolságban megtalálható.
Ha bármilyen kérdésed lenne az ingatlannal kapcsolatban, ne habozz felvenni velünk a kapcsolatot. Ügyfeleink bizalommal fordulhatnak hozzánk, hiszen készséggel állunk rendelkezésükre. Az ingatlan bemutatása mellett a mi célunk az, hogy segítsük megtalálni az ideális otthont. Akár készpénzből akár államilag támogatott vagy szabad piaci hitelt szeretnél felvenni a vásárláshoz, tanácsadó kollégánk díjmentes, banksemleges ügyintézéssel áll rendelkezésre. Igény esetén ügyvédi segítséget is ajánlunk a teljes ügymenet jogi lebonyolításához.
A belső nyílászárók, burkolatok, szaniterek választhatók így a belső befejező munkák az új tulajdonos ízlésének megfelelően készülnek majd el.
A külső nyílászárók 3 rétegű üvegezésű ablakok lesznek, a külső falak 30 cm-es hőszigetelő téglából épülnek amit kívülről 12 cm-es szigeteléssel burkolnak be.
A ház fűtése hőszivattyúkészülékről működik majd padlófűtés hőleadással.
Az ingatlan csendes, rendezett környezetben, a község belterületén található, könnyen (végig aszfaltozott úton) megközelíthető a 6-os főút és M6-os autópálya irányából egyaránt 10 perc alatt elérhető.
Perkáta nagyközség Dunaújvárostól 12 km-re, Székesfehérvártól 36 km-re helyezkedik el.
Az ingatlan közvetlen környezet rendezett. Jellemzően életvitel szerűen lakott családi házak határozzák meg az utca képet. Autóbusz megálló a közelben 5 perc séta távolságban megtalálható.
Ha bármilyen kérdésed lenne az ingatlannal kapcsolatban, ne habozz felvenni velünk a kapcsolatot. Ügyfeleink bizalommal fordulhatnak hozzánk, hiszen készséggel állunk rendelkezésükre. Az ingatlan bemutatása mellett a mi célunk az, hogy segítsük megtalálni az ideális otthont. Akár készpénzből akár államilag támogatott vagy szabad piaci hitelt szeretnél felvenni a vásárláshoz, tanácsadó kollégánk díjmentes, banksemleges ügyintézéssel áll rendelkezésre. Igény esetén ügyvédi segítséget is ajánlunk a teljes ügymenet jogi lebonyolításához.
Kiemelt ingatlanok
Érd, Érdliget
Érdligeten a városközpont közelében, átmenő forgalomtól mentes csendes családi házas környezetben, csodálatosan parkosított 1095 nm-es díszkertben, nettó 170nm lakóterületű családi...
197 m22 háló3 fürdő
Érd, Fenyves-Parkváros
3 SZOBA+NAPPALIS, KÖZKEDVELT ALAPRAJZ SZERINT MEGÉPÜLT, 46M2 NAPPALI-ÉTKEZŐ-KONYHA TÁGAS TÉRREL, EGYSZINTES, MEDITERRÁN CSALÁDI HÁZ ELADÓ!
Érden, a Fenyves Parkvárosi részen 840m2...
128 m23 háló2 fürdő
Érd, Dombosváros
Érd dombosvárosi területén , főút közeli csendes , család barát aszfaltozott utcában , 1097 m2-es extra méretű parkosított összközműves telken ,belső kétszintes ,135,6m2-es ,3...
135 m23 háló2 fürdő
Érd
Érden összesen 8 000 m2-es Lf építési övezetben található telekterület (5 egymás mellett található, de külön-külön helyrajziszámon nyilvántartott területből áll), 158 m2-es...
158 m2hálófürdő
Érd, Vincellér
Érd Parkváros kitűnő megközelíthetőséggel, közel "0" energiaigényű 3 lakásos sorház 120m2 hasznos lakóterületű 3 szoba+nappalis+GARÁZSOS, belső kétszintes, KÜLÖN UTCAFRONTI...
120 m23 háló1 fürdő
Érd, Vincellér
Érd Parkváros kitűnő megközelíthetőséggel, közel "0" energiaigényű 3 lakásos sorház 107m2 hasznos lakóterületű 2 szoba+nappalis+GARÁZSOS, belső kétszintes, KÜLÖN UTCAFRONTI...
107 m22 háló1 fürdő













