Megosztás
Érd, Dombosváros
ház, családi ház
Alapterület
132 m2
Telekterület
863 m2
Építés éve
2026
Háló
3 db
Fürdő
2 db
Nappali
1 db
120 Millió Ft
| Komfort | összkomfort |
| Burkolat | laminált padló, járólap |
| Környezeti hatás | napfényes, világos |
| Épület belső állapota | új |
| Épület külső állapota | új építésű |
| Fűtés | padló |
| Belső kialakítás | ebédlő, konyha, kamra, előszoba, közlekedő |
| Parkolás | garázsban |
| Közmű | villany, víz |
| Tetőszerkezet anyaga | betoncserép |
| Épületszerkezet | POROTHERM tégla, hőszigetelt |
| Extrák | kertkapcsolatos |
| Szintek száma: | földszintes |
67m2-es HATALMAS ÉTKEZŐ-KONYHA NAPPALIS ELOSZTÁS! 40M2 NAGY TERASZ! NAGY ALAPTERÜLET, A+ ENERGETIKAI BESOROLÁSSAL!
AZ INGATLAN ELOSZTÁSÁBÓL KIFOLYÓLAG AKÁR KÉT KÜLÖN LAKRÉSZNEK IS HASZNÁLHATÓ! IGAZI KÜLÖNLEGESSÉG A PIACON!
Érd Dombosváros dinamikusan fejlődő részén, csendes természetközeli helyen, 863 m2 önálló telken, 8KW HŐSZIVATTYÚRÓL működő, PADLÓFŰTÉSSEL minden helyiségben, ÚJ ÉPÍTÉSŰ, (CSOK+, OTTHON START hitel igénybevételével is megvásárolható), 3 szoba + nappalis, GARÁZSOS, NAGY TERASZOS, 132 m2 hasznos lakóterületű, KÖZKEDVELT ELOSZTÁSÚ, LEINFORMÁLHATÓ ÉS SOK REFERENCIÁVAL RENDELKEZŐ BERUHÁZÓTÓL önálló családi ház eladó.
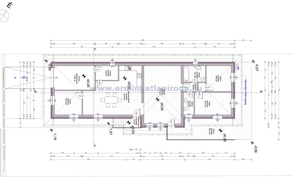
A ház elosztása:
Földszint: fedett terasz 1,33 m2, 3 szoba (9,9m2, 12,17m2, 10,21m2), közlekedő 3,1m2, háztartási helyiség 3,6m2, fürdőszoba 5,4m2, tároló 5,2 m2, nappali 33,13m2, étkező-konyha 34,13m2, teraszkapcsolattal 39,11m2, garázs 15,01m2,
A ház 30-as téglából épül, amit 15 cm-es polisztirol szigeteléssel burkolnak körbe, a födémre 25-cm kőzetgyapot szigetelés kerül, a tető fedése Bramac cserép. Tégla 10-es válaszfalak, a belső falak GÉPI VAKOLÁSSAL ellátva. A külső nyílászárók műanyag ajtók és ablakok 3 rétegű üvegezéssel, bukó-nyíló kivitelben. A fűtés és melegvíz 8 kw-os hőszivattyúról üzemel+ 200l HMV tartály. RIASZTÓ előkészítés az árban.
A hideg és meleg burkolatok, a beltéri ajtók, csapok, szaniterek a műszaki tartalomban megjelölt áron szabadon megválaszthatók. Így az új tulajdonosok ízlésére, igényére szabva készülnek az esztétikai befejező munkák.
A KIVITELEZŐ HOSSZÚ ÉVEK ÓTA A PIACON, REFERENCIA MEGTEKINTHETŐ! A+ ENERGETIKA!
CÉGES ÉPÍTKEZÉS!
Átadás: 2026. nyár vége
AZ INGATLAN ELOSZTÁSÁBÓL KIFOLYÓLAG AKÁR KÉT KÜLÖN LAKRÉSZNEK IS HASZNÁLHATÓ! IGAZI KÜLÖNLEGESSÉG A PIACON!
Érd Dombosváros dinamikusan fejlődő részén, csendes természetközeli helyen, 863 m2 önálló telken, 8KW HŐSZIVATTYÚRÓL működő, PADLÓFŰTÉSSEL minden helyiségben, ÚJ ÉPÍTÉSŰ, (CSOK+, OTTHON START hitel igénybevételével is megvásárolható), 3 szoba + nappalis, GARÁZSOS, NAGY TERASZOS, 132 m2 hasznos lakóterületű, KÖZKEDVELT ELOSZTÁSÚ, LEINFORMÁLHATÓ ÉS SOK REFERENCIÁVAL RENDELKEZŐ BERUHÁZÓTÓL önálló családi ház eladó.
A ház elosztása:
Földszint: fedett terasz 1,33 m2, 3 szoba (9,9m2, 12,17m2, 10,21m2), közlekedő 3,1m2, háztartási helyiség 3,6m2, fürdőszoba 5,4m2, tároló 5,2 m2, nappali 33,13m2, étkező-konyha 34,13m2, teraszkapcsolattal 39,11m2, garázs 15,01m2,
A ház 30-as téglából épül, amit 15 cm-es polisztirol szigeteléssel burkolnak körbe, a födémre 25-cm kőzetgyapot szigetelés kerül, a tető fedése Bramac cserép. Tégla 10-es válaszfalak, a belső falak GÉPI VAKOLÁSSAL ellátva. A külső nyílászárók műanyag ajtók és ablakok 3 rétegű üvegezéssel, bukó-nyíló kivitelben. A fűtés és melegvíz 8 kw-os hőszivattyúról üzemel+ 200l HMV tartály. RIASZTÓ előkészítés az árban.
A hideg és meleg burkolatok, a beltéri ajtók, csapok, szaniterek a műszaki tartalomban megjelölt áron szabadon megválaszthatók. Így az új tulajdonosok ízlésére, igényére szabva készülnek az esztétikai befejező munkák.
A KIVITELEZŐ HOSSZÚ ÉVEK ÓTA A PIACON, REFERENCIA MEGTEKINTHETŐ! A+ ENERGETIKA!
CÉGES ÉPÍTKEZÉS!
Átadás: 2026. nyár vége
Kiemelt ingatlanok
Érd, Fenyves-Parkváros
3 SZOBA+NAPPALIS, KÖZKEDVELT ALAPRAJZ SZERINT MEGÉPÜLT, 46M2 NAPPALI-ÉTKEZŐ-KONYHA TÁGAS TÉRREL, EGYSZINTES, MEDITERRÁN CSALÁDI HÁZ ELADÓ!
Érden, a Fenyves Parkvárosi részen 840m2...
128 m23 háló2 fürdő
Érd, Érdliget
TEHERMENTES, AZONNAL KÖLTÖZHETŐ 2008-ban ÉPÜLT! VASÚTI MEGÁLLÓTÓL 10 PERC SÉTÁRA, REMEK INFRASTRUKTÚRA, 160 m2-es, 5 SZOBA + NAPPALI, 2 FÜRDŐSZOBA, KIEMELKEDŐEN JÓ ÁLLAPOTÚ,...
159 m25 háló2 fürdő
Érd, Vincellér
Érd Parkváros kitűnő megközelíthetőséggel, közel "0" energiaigényű 3 lakásos sorház 120m2 hasznos lakóterületű 3 szoba+nappalis+GARÁZSOS, belső kétszintes, KÜLÖN UTCAFRONTI...
120 m23 háló1 fürdő
Érd, Újtelep
Érd, Tárnok felé eső déli részén, TELJESEN ALÁPNCÉZETT ÖSSZESEN 360 m2-es HÁZ, AZ ÚJRA ELŐÁLLÍTÁSI KÖLTSÉGE ALATT!
A ház 2003-ban hőszigetelő téglából épült 923 m2-es...
308 m26 háló2 fürdő
Érd, Vincellér
Érd Parkváros kitűnő megközelíthetőséggel, közel "0" energiaigényű 3 lakásos sorház 107m2 hasznos lakóterületű 2 szoba+nappalis+GARÁZSOS, belső kétszintes, KÜLÖN UTCAFRONTI...
107 m22 háló1 fürdő
Budapest
35 kW SZALDÓS ELSZÁMOLÁSÚ NAPELEM, 22 kW-os HŐSZIVATTYÚ, KÜLSŐ és BELSŐ FŰTÖTT MEDENCE, NAGY TELEK, TÁGAS BELSŐ TEREK, SZÁMOS EXTRÁVAL és akár TELJES BÚTORZATTAL és beépített...
600 m26 háló3 fürdő













