Megosztás
Budapest
ház, ikerház
Alapterület
109 m2
Telekterület
1080 m2
Építés éve
2025
Háló
3 db
Fürdő
2 db
Nappali
1 db
149.9 Millió Ft
| Komfort | duplakomfort |
| Fürdő/WC | külön és egyben |
| Burkolat | laminált padló, járólap |
| Környezeti hatás | csendes |
| Épület belső állapota | új |
| Épület külső állapota | épülő projekt |
| Fűtés | egyéb |
| Belső kialakítás | erkély, ebédlő, amerikai konyha, kamra, előszoba, tároló |
| Tájolás | délnyugat |
| Közmű | villany, víz, csatorna |
| Tetőszerkezet anyaga | cserép |
| Épületszerkezet | POROTHERM tégla, hőszigetelt |
| Kilátás | kertre néző |
| Telek elhelyezkedés | belterület |
| Szintek száma: | 2 |
ÚJ ÉPÍTÉSŰ IKERHÁZ ÁREMELÉS ELŐTTI ÁRON, 2025-ÖS LEKÖTÉS ESETÉN 149,9 MFT ,
KIZÁRÓLAGOS UTCAFRONTI BEJÁRAT , SAJÁT SZEPARÁLT KERT, HŐSZIVATTYÚS PADLÓ FŰTÉS.
Budapest XXII. kerületében Budafokon épülő 357m2-es saját, SZEPARÁLT kerttel rendelkező, kétszintes ikerház várható átadása 2026. júliusában!
Megbízható beruházó, számos referencia ingatlan!
Az ikerházak sávos betonalapra épülnek, főfalak 30-as téglából készülnek, amelyekre kívülről 15cm dryvit szigetelés kerül. Belső válaszfalak szintén téglából készülnek. Az ikerházak a tárolók falánál érintkeznek.
A külső nyílászárók műanyag szerkezetűek, fokozott hőszigetelésű üvegezéssel ellátva.
A belső nyílászárók dekorfóliás ajtók.
Tetőfedés cserép.
Az igény szerinti befejezésnek köszönhetően a hideg-meleg burkolatok kiválaszthatók a kivitelezővel folytatott megbeszélés keretében, de az ár a hidegburkolatokat 4500 Ft/nm-ig, normál méretű lapok esetében a meleg burkolatokokat 4500 Ft/nm-ig tartalmazza.
A fütésről 8 kW-os Fischer hőszivattyú gondoskodik padlófűtéssel.
Parkolás: saját udvaron fedetlen-felszíni, kövezett beálló áll rendelkezésre.
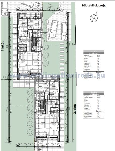
Az , 104,75 nm-es ikerház földszintjén található egy
- 21,25 nm-es nappali,
- 14,96 nm-es konyha-étkező
- 2,04 nm kamra
- 5,04 nm-es háztartási helyiség
- Fürdőszoba 3,23 nm
- Előszoba 3,2 nm
- + terasz 15,12 nm (ennek fele került a teljes négyzetméterbe beszámításra)
Az emeleten három élhető szoba ( 12,8 nm,12,4 nm és 10,07 nm) mellett egy fürdőszoba+WC 6,02 nm valamint a közlekedő 2,8 nm. (A lépcső 3,41 nm-t foglal el).
A 2. sz.109 nm-es ikerház földszintjén található egy
- Nappali 25,75 nm
- Konyha-étkező 12,29 nm
- Fürdőszoba 5,59 nm
- Előtér 3,23 nm
- + terasz 15,12 nm (ennek fele került a teljes négyzetméterbe beszámításra)
Az emeleten három élhető szoba ( 12,6 nm,12,1 nm és 10,12 nm) mellett egy fürdőszoba + WC 5,85 nm valamint a közlekedő 5,45 nm és egy háztartási helyiség 5,04 nm mellett a lépcső 3,5 nm-t foglal el.
Szuper infrastruktúra!!! Buszmegálló, óvoda, iskola, élelmiszerboltok, gyógyszertár, posta pár perc sétatávolságra.
Ha bármilyen kérdésed lenne az ingatlannal kapcsolatban, ne habozz felvenni a kapcsolatot.
Akár készpénzből akár államilag támogatott vagy szabad piaci hitelt szeretnél felvenni a vásárláshoz, tanácsadó kollégánk díjmentes, banksemleges ügyintézéssel áll rendelkezésre. Igény esetén ügyvédi segítséget is ajánlunk a teljes ügymenet jogi lebonyolításához.
KIZÁRÓLAGOS UTCAFRONTI BEJÁRAT , SAJÁT SZEPARÁLT KERT, HŐSZIVATTYÚS PADLÓ FŰTÉS.
Budapest XXII. kerületében Budafokon épülő 357m2-es saját, SZEPARÁLT kerttel rendelkező, kétszintes ikerház várható átadása 2026. júliusában!
Megbízható beruházó, számos referencia ingatlan!
Az ikerházak sávos betonalapra épülnek, főfalak 30-as téglából készülnek, amelyekre kívülről 15cm dryvit szigetelés kerül. Belső válaszfalak szintén téglából készülnek. Az ikerházak a tárolók falánál érintkeznek.
A külső nyílászárók műanyag szerkezetűek, fokozott hőszigetelésű üvegezéssel ellátva.
A belső nyílászárók dekorfóliás ajtók.
Tetőfedés cserép.
Az igény szerinti befejezésnek köszönhetően a hideg-meleg burkolatok kiválaszthatók a kivitelezővel folytatott megbeszélés keretében, de az ár a hidegburkolatokat 4500 Ft/nm-ig, normál méretű lapok esetében a meleg burkolatokokat 4500 Ft/nm-ig tartalmazza.
A fütésről 8 kW-os Fischer hőszivattyú gondoskodik padlófűtéssel.
Parkolás: saját udvaron fedetlen-felszíni, kövezett beálló áll rendelkezésre.
Az , 104,75 nm-es ikerház földszintjén található egy
- 21,25 nm-es nappali,
- 14,96 nm-es konyha-étkező
- 2,04 nm kamra
- 5,04 nm-es háztartási helyiség
- Fürdőszoba 3,23 nm
- Előszoba 3,2 nm
- + terasz 15,12 nm (ennek fele került a teljes négyzetméterbe beszámításra)
Az emeleten három élhető szoba ( 12,8 nm,12,4 nm és 10,07 nm) mellett egy fürdőszoba+WC 6,02 nm valamint a közlekedő 2,8 nm. (A lépcső 3,41 nm-t foglal el).
A 2. sz.109 nm-es ikerház földszintjén található egy
- Nappali 25,75 nm
- Konyha-étkező 12,29 nm
- Fürdőszoba 5,59 nm
- Előtér 3,23 nm
- + terasz 15,12 nm (ennek fele került a teljes négyzetméterbe beszámításra)
Az emeleten három élhető szoba ( 12,6 nm,12,1 nm és 10,12 nm) mellett egy fürdőszoba + WC 5,85 nm valamint a közlekedő 5,45 nm és egy háztartási helyiség 5,04 nm mellett a lépcső 3,5 nm-t foglal el.
Szuper infrastruktúra!!! Buszmegálló, óvoda, iskola, élelmiszerboltok, gyógyszertár, posta pár perc sétatávolságra.
Ha bármilyen kérdésed lenne az ingatlannal kapcsolatban, ne habozz felvenni a kapcsolatot.
Akár készpénzből akár államilag támogatott vagy szabad piaci hitelt szeretnél felvenni a vásárláshoz, tanácsadó kollégánk díjmentes, banksemleges ügyintézéssel áll rendelkezésre. Igény esetén ügyvédi segítséget is ajánlunk a teljes ügymenet jogi lebonyolításához.
Kiemelt ingatlanok
Budapest
35 kW SZALDÓS ELSZÁMOLÁSÚ NAPELEM, 22 kW-os HŐSZIVATTYÚ, KÜLSŐ és BELSŐ FŰTÖTT MEDENCE, NAGY TELEK, TÁGAS BELSŐ TEREK, SZÁMOS EXTRÁVAL és akár TELJES BÚTORZATTAL és beépített...
600 m26 háló3 fürdő
Érd
Érden összesen 8 000 m2-es Lf építési övezetben található telekterület (5 egymás mellett található, de külön-külön helyrajziszámon nyilvántartott területből áll), 158 m2-es...
158 m2hálófürdő
Érd, Érdliget
Érdligeten a városközpont közelében, átmenő forgalomtól mentes csendes családi házas környezetben, csodálatosan parkosított 1095 nm-es díszkertben, nettó 170nm lakóterületű családi...
197 m22 háló3 fürdő
Érd, Fenyves-Parkváros
3 SZOBA+NAPPALIS, KÖZKEDVELT ALAPRAJZ SZERINT MEGÉPÜLT, 46M2 NAPPALI-ÉTKEZŐ-KONYHA TÁGAS TÉRREL, EGYSZINTES, MEDITERRÁN CSALÁDI HÁZ ELADÓ!
Érden, a Fenyves Parkvárosi részen 840m2...
128 m23 háló2 fürdő
Érd, Vincellér
Érd Parkváros kitűnő megközelíthetőséggel, közel "0" energiaigényű 3 lakásos sorház 98m2 hasznos lakóterületű 2 szoba+nappalis+garázsos, belső kétszintes, külön utcafronti...
98 m22 háló1 fürdő
Érd, Vincellér
Érd Parkváros kitűnő megközelíthetőséggel, közel "0" energiaigényű 3 lakásos sorház 92m2 hasznos lakóterületű 3 szoba+nappalis, belső kétszintes, külön utcafronti bejáratú,...
92 m23 háló2 fürdő













